$1,850,000
- 2267 E 35TH AVENUE
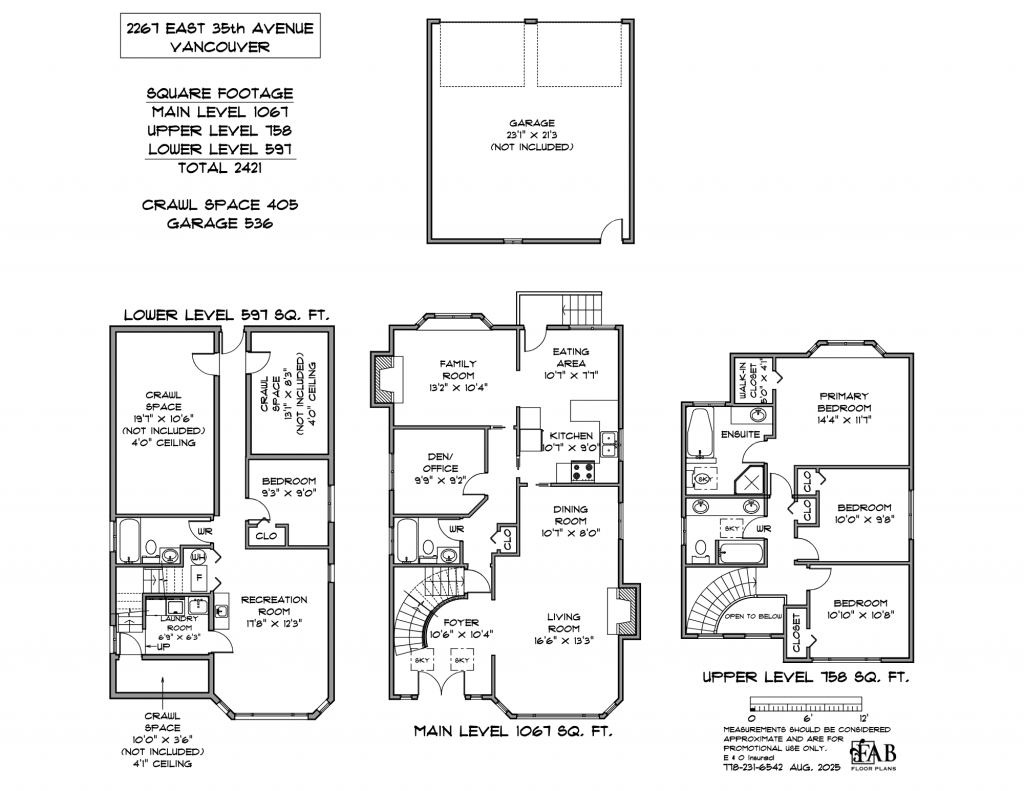
EXTREMELY SPACIOUS 1990 BUILT FAMILY HOME, WELL MAINTAINED OVER THE YEARS BY THE ORIGINAL OWNER! THE HOUSE – Freshly painted and ready to go, the exceptional floor plan is ideal for a young family. Expansive main floor features living/dining room, eat-in kitchen, family room, full bathroom + large den easily used as a 5th bedroom. 3 beds 2 baths up, incl large primary with en suite + walk in closet. Down is rec room, laundry room, bedroom and 4th full bathroom. Easily converted into a 1 bed suite, with potential in the huge crawl space to create even more rooms. THE LOT – RT-11 zoned 33′ x 122′ on a peaceful residential street, with mountain views + double garage. 5 mins walk to multiple shops/restaurants + Cunningham Elementary. 15 mins walk to Gladstone Secondary + 2 Skytrain stations.
Featured Highlights
5 Parking Spaces
Beautiful Neighbourhood
Desirable Location
Extremely Spacious
Outdoor Space
Details
| Price: | $1,850,000 |
| Address: | 2267 E 35TH AVENUE |
| City: | Vancouver East |
| Province: | British Columbia |
| Postal Code: | V5P 1C1 |
| MLS: | VR3035796 |
| Finished SQ FT: | 2,453 |
| Total SQ FT: | 2,453 |
| Rooms: | 14 |
| Bedrooms: | 4 |
| Bathrooms: | 4 |
| En Suites: | 1 |
| Kitchens: | 1 |
| Title to Land: | freehold non-strata |
| Property Taxes: | $8,575.42 |
| Constr. Type: | Frame - Wood |
| Type of Parking: | Garage - Double |
| No. of Parking: | 5 |
| Year Built: | 1990 |
| Exposure: | N |
| View: | Y |
| View Details: | Mountains |
| Outdoor Area: | Fenced Yard |
| Flooring: | hardwood mixed tile |
| Heating: | baseboard hot water |
| Fireplace: | Yes |
| Fireplace Type: | gas - natural |
| Features Included: | Washer/Dryer Fridge Stove Dishwasher Drapes/Window Cov. Fireplace Insert Garage Door Opener Security - RI |
| Elem. School: | Cunningham Elementary |
| High School: | Gladstone Secondary |
| Laneway House: | Yes |

to a friend
Disclaimer
The data relating to real estate on this website comes in part from the MLS® Reciprocity program of either the Real Estate Board of Greater Vancouver (REBGV), the Fraser Valley Real Estate Board (FVREB) or the Chilliwack and District Real Estate Board (CADREB). Real estate listings held by participating real estate firms are marked with the MLS® logo and detailed information about the listing includes the name of the listing agent. This representation is based in whole or part on data generated by either the REBGV, the FVREB or the CADREB which assumes no responsibility for its accuracy. The materials contained on this page may not be reproduced without the express written consent of either the REBGV, the FVREB or the CADREB.






































